Hexacube 位于樟宜路的商业广场。这个商业广场主要用于零售商店的出租和出售,地理位置理想,距离 Eunos MRT只有300米的距离,属于永久产权。

一共有6层,总计拥有36个商店和37间办公室,所有工程今年完工。商场底楼天花板高度为 3.8 米,1楼2楼为 2.35米 – 4.7米 之间。而办公室的高度为5米。

项目所在区Payar Lebar是政府规划为东部的工商业重镇。项目是非常稀有的靠近地铁站的永久产权房产,保值能力优越于附近商场,是长远投资者明智的选择。
指导价格
商场店面 :$1,496,000 (560 平方尺)
办公室 : $1,660,600 (807 平方尺)
现在开发商有给予买家非常好的优惠价,以上是最小单位的价格,预知其他单位的价格和详细信息,欢迎联系我们。
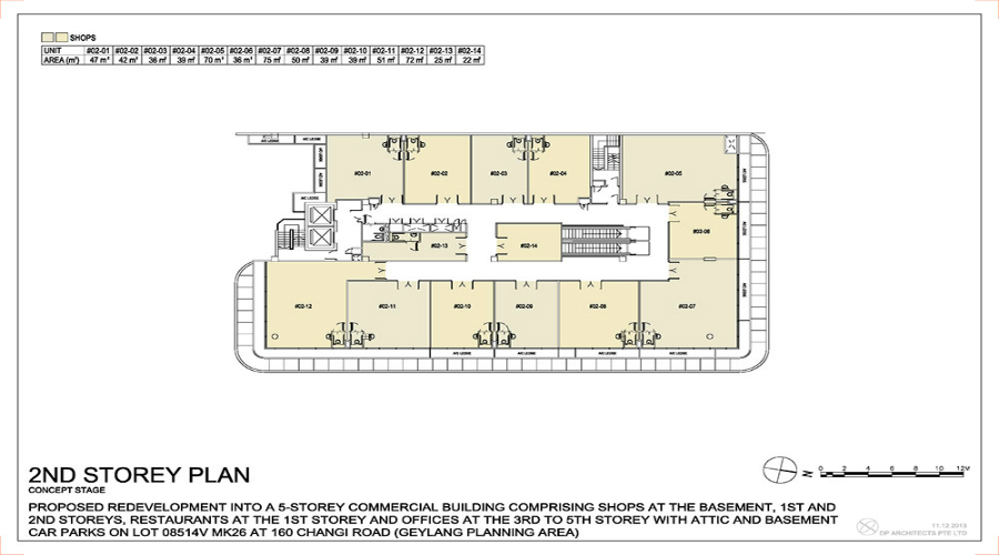
户型图


投资商业地产的优势:
1. 无额外印花税 (Additional Buyer Stamp Duty)
新加坡所有类别房产都需要缴纳3%的买家印花税。商铺买卖无需交纳额外买家印花税(ABSD) 和卖家印花税 (SSD) 。
2. 商业贷款额度。
银行给予最高商业贷款可高达80%(附条件)贷款年限通常在15-20年之间。
3. 商业贷款利率
商业贷款利率比住宅贷款利率高0.5-1个百分比。目前新加坡银行提供的商业贷款利率在2.5%上下。
4. 消费税(GST)
个人买家需要交纳7%的GST。如果买家是GST注册公司,可以申请退回这笔费用。
5. 房产税(Property Tax)
商业类别房产税一律为年值的10%。
6. 买家身份无限制,外国人和本地人都可以购买
7:自由买卖,不受私宅卖方印花税条例限制。
8:以房养贷,没有房贷压力。
9:地产租金回报高。
单位和价格的信息会随时变更,想要更多信息或者看样板房,请尽快联系我们。
手机:+65 8161-6805
微信扫码:
