
楼盘名称:Kent Ridge Hill Residences
开发商:Oxley Holdings Ltd
产权:99年
TOP:2024
楼层数目:5
单元数目:548
【公寓卖点】
【1】走路8分钟可到达巴西班让地铁站
【2】占地面积大却只有500个单位左右,低密度
【3】附近有商业中心- One-north Business Park, Mapletree Business City, Harbourfront
【4】附近公园有Kent Ridge Park, West Coast Park, HortPark, Labrador Park and the Southern Ridge
【7】附近学府-国立大学,日本学校,ISS国际学校等等
【8】靠近CBD, AYE轻松到达全岛各处
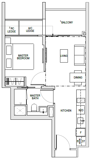
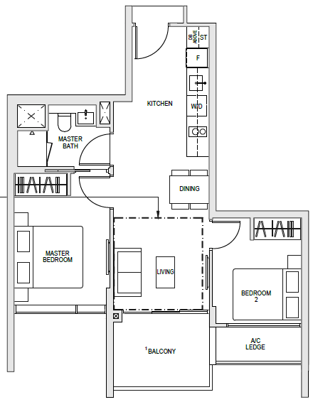
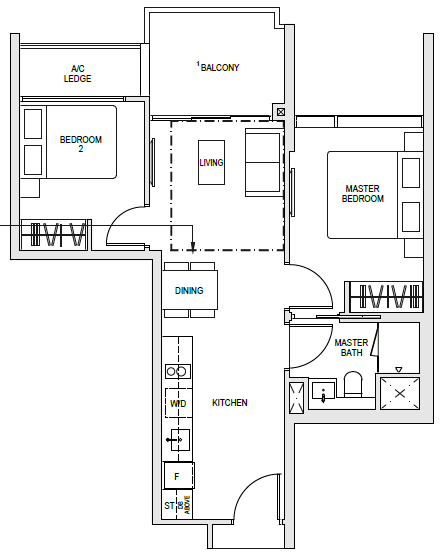
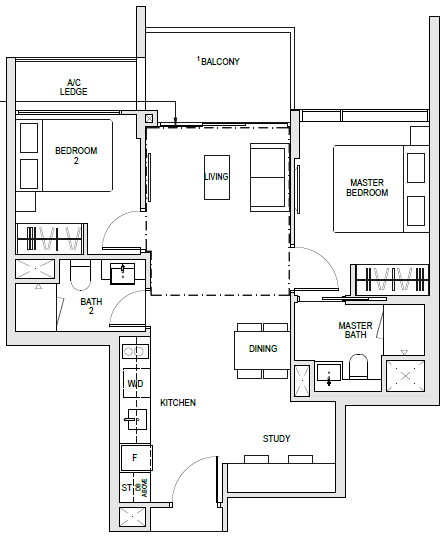
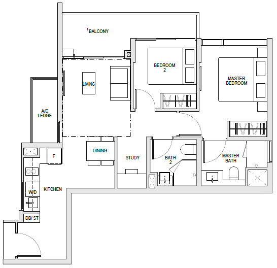
户型图
A1户型 1室 44平方米

AS1户型 1室+书房 48平方米

B1户型 2室Compact 60平方米

B2户型 2室Compact 60平方米

BP1户型 2室Premium 74平方米

BP2户型 73平方米

BP3户型 2室Premium 74平方米

BS1户型 2室+书房 69平方米

BS2户型 2室+书房 69平方米

BS3户型 2室+书房 72平方米

BS4户型 2室+书房 72平方米

BS5户型 2室+书房 775平方英尺 / 72平方米

C1户型 3室Compact 82平方米

C2户型 3室Deluxe 88平方米

C3户型 3室Deluxe 89平方米

CP1户型 3室 Premium 97平方米

CP2户型 3室 Premium 100平方米

CSPH1户型 3室+书房 Penthouse 132平方米


CSPH2户型 3室+书房 Penthouse 130平方米


CSPH3户型 3室+书房 Penthouse 134平方米


DPH1户型 4室 Penthouse 141平方米


DPH2户型 4室 Penthouse 175平方米


DPH3户型 4室 Penthouse 179平方米


ESPH1户型 5室+书房 Penthouse 165平方米


ESPH2户型 5室+书房 Penthouse 166平方米


T1 4室 Strata Landed House 170平方米



T2 5室Strata Landed House 192平方米


